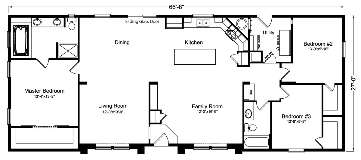
House #3: Mt. Constance

  • 1782 sq. ft.
  • 3 Bedrooms
  • 2 Bathrooms

Here’s a modern, open floor-plan loaded with wow appeal! Experience the high ceilings, entertainment-ready eating bar, and walk in closets in every bedroom. Pick your own jaw-dropping finishes and live in style!